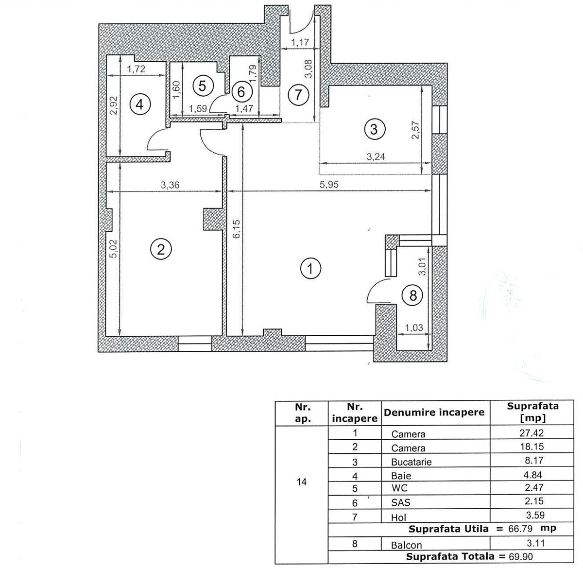
Apartament finisat situat la etajul 3, spatios si luminos cu vedere la Scoala Americana, cu suprafata utila de aproximativ 67 mp. Se vinde cu loc de parcare suprateran inclus.
*Apartamentele se vand cu compartimentarile interne, peretii zugraviti, pardoseli de parchet in holuri si camere, pardoseli de gresie in zona bucatariei, pardoseli gresie vestibul, pardoseli de gresie, faianta si obiecte sanitare in bai, usi interioare, geamuri tip termopan cu tamplarie PVC, toate instalatiile functionale, traseele de aer conditionat deja instalate, sistem videointerfon acces cladire.





